Let op: Dit artikel staat op uitloop. U kunt het vervangende artikel hier vinden: 7215183 / Brandwerend kanaal PYROLINE® Con S BSK I90/E30

Brandwerend kanaal PYROLINE® Con S BSK I90/E30

Art.nr. 7215182 | EAN 4012196461516

1000 mm
Productbeschrijving
Productbeschrijving
Brandwerend Kanaal van water- en vorstbestendig glasvezel lichtbeton van bouwstofklasse A1 volgens NBN-EN 13501-1 voor het brandveilig leggen van kabels in vlucht- en reddingswegen en voor functiebehoud van veiligheidsrelevante systemen. Classificatie I90 als I-kanaal volgens DIN 4102 deel 11 en classificatie E30 als E-kanaal volgens DIN 4102 deel 12.
Montage van het kanaal op wandconsoles of als plafondmontage met hangprofielen en consoles resp. op een met draadstangen opgehangen U-dwarsprofiel. Volledig geassembleerde verbindingsfittingen zorgen voor een snelle montage ter plaatse, los geplaatste afdekkingen maken snelle revisie en hertoewijzing mogelijk.
Brandwerend kanaal met deksel en voorgemonteerde verbindingsstukken, verbindingsschroeven en afdichtstrippen.
  • Brandwerend kanaal hangend, plafondmontage I90
  • Brandwerend kanaal hangend, plafondmontage E30
  • Brandwerend kanaal hangend, wandmontage I90
  • Brandwerend kanaal afgehangen, wandmontage E30
  • Brandweerstandklasse I 90
  • Functiebehoudklasse E30
Technische gegevens

Technische gegevens

Aantal bevlambare zijden 4
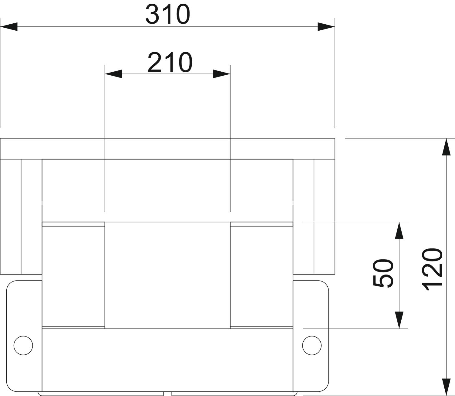
Afm. H 120 mm
Afm. h 50 mm
Brandweerstandsklasse E - functiebehoud 30
Brandweerstandsklasse I - installatiekanaal 90
Dekselbevestiging los
Dimensie 50x210
Kleur grijs
Lengte 1000 mm
Maat b 210 mm
Maat B 310 mm
Materiaal Lichtbeton, glasvezel
Materiaal van het isolatiemateriaal Glasvezellichtbeton
Met perforatie nee
Ommanteling zonder
Scheidingschotten mogelijk ja
Alle typen

Alle typen

Type Lengte Maat B Maat b Afm. H Afm. h Art.nr. Aantal kl. VKE
BSKH09-K0506 1000 mm 188 mm 60 mm 140 mm 50 mm 7215175
1 m
BSKH09-K0511 1000 mm 238 mm 110 mm 140 mm 50 mm 7215179
1 m
BSKH09-K0521 1000 mm 338 mm 210 mm 140 mm 50 mm 7215183
1 m
BSKH09-K1021 1000 mm 338 mm 210 mm 195 mm 105 mm 7215187
1 m
BSKH 090521 1000 mm 310 mm 210 mm 120 mm 50 mm 7215182
1 m
Toebehoren

Systeemtoebehoren

Producten Type Art.nr. Aantal kl. VKE
Verdubbelingsstuk voor brandwerend kanaal PYROLINE® Con Verdubbelingsstuk voor brandwerend kanaal PYROLINE® Con KAD-8040 7215464
1 Stuks
Verdubbelingsstuk voor brandwerend kanaal PYROLINE® Con Verdubbelingsstuk voor brandwerend kanaal PYROLINE® Con KAD-10040 7215462
1 Stuks
Mortel voor brandwerend kanaal Mortel voor brandwerend kanaal KTM 7215500
1 Stuks
Verloopstuk draadstang E30 Verloopstuk draadstang E30 KGA 7215395
1 Stuks
Scheidingsschot 45 FS Scheidingsschot 45 FS TSG 45 FS 6062033
3 m
Schroef voor scheidingsschotbevestiging, KRS 6x30 Schroef voor scheidingsschotbevestiging, KRS 6x30 KRS 6x30 3498100
200 Stuks
Identificatieplaatje Identificatieplaatje KS-K DE 7214734
10 Stuks
Identificatieplaatje voor kabelinstallatie Identificatieplaatje voor kabelinstallatie KS-E DE 7205423
10 Stuks
Downloads

Download

Download

Voor dit product zijn geen bestekteksten beschikbaar